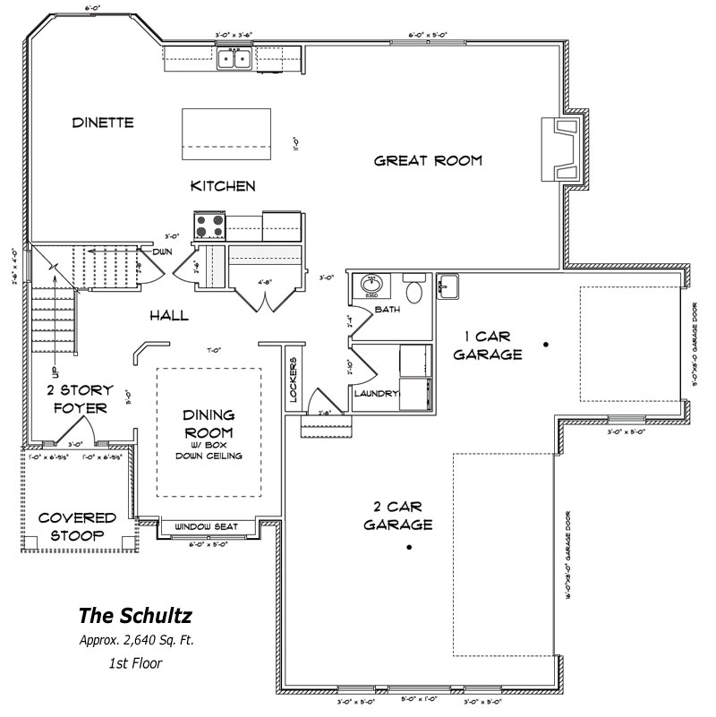
Schultz

Sq Ft: 2,640
Bedrooms: 4
Bathrooms: 2 1/2
Description: This beautiful two-story home offers a spacious 3-car garage, open concept floor plan with a 2-story foyer. Custom trim work throughout, upgraded flooring, custom cabinets, and solid surface counters. This floor plan has a spacious master retreat with a large walk-in closet. This home has a combination of stone, brick, stucco, and siding, with a front covered stoop that welcomes you into the home.

